Land at Bushbury Road Bushbury Road, New Cross, Wolverhampton, WV10 0LY

  • Conditional Online Auction Sale
  • Guide Price* : £125,000

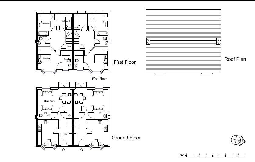
**LAND FOR SALE WITH OUTLINE PLANNING PERMISSION FOR THREE PROPERTIES - TO INCLUDE 2 SEMI DETACHED & 1 DETACHED HOME** Here is your chance to purchase a plot of land with outline planning permission for three dwellings. The land is situated on Bushbury Road, close to New Cross Hospital, Bentley Bridge Retail Park & offers picturesque with park views to front. The outline planning permission has been granted for two semi detached properties and one detached property. All of the properties will comprise entrance hall, ground floor guest WC, kitchen/diner, lounge/diner. The first floor has three bedrooms, ensuite and separate family bathroom.

* Generally speaking Guide Prices are provided as an indication of each seller's minimum expectation, i.e. 'The Reserve'. They are not necessarily figures which a property will sell for and may change at any time prior to the auction. Virtually every property will be offered subject to a Reserve (a figure below which the Auctioneer cannot sell the property during the auction) which we expect will be set within the Guide Range or no more than 10% above a single figure Guide.

Loading the bidding panel...

Agreement Documents

Make an Enquiry

Submit an enquiry and someone will be in contact shortly.

 
*  
*  
*
*
*

Share