Development Site 2015 0463, Coton Park, Linton, Swadlincote, Derbyshire, DE12 6RG

  • Conditional Online Auction Sale
  • Guide Price* : £400,000

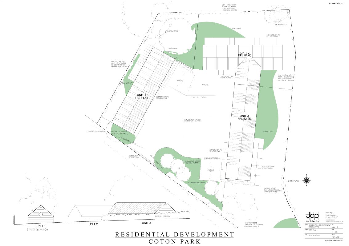
Location - located in the village of Linton in Swadlincote, just a short journey to the A444 and not too far from the M42. What 3 words location ///punt.guess.makes Currently 3 part built 3 bedroom bungalows 1 detached 2 semis. An Additional Plot included in sale that could house another 3 bedroom detached bungalow STP and reserve being met. There is a large Parking and mains electric and water to the site. Viewing via appointment only! Planning - Full permission and building control sign off to current build level for 3x 3 bedroom bungalows 1 detached 2 semi-detached. Planning Application number 9/2015/0463 South Derbyshire

* Generally speaking Guide Prices are provided as an indication of each seller's minimum expectation, i.e. 'The Reserve'. They are not necessarily figures which a property will sell for and may change at any time prior to the auction. Virtually every property will be offered subject to a Reserve (a figure below which the Auctioneer cannot sell the property during the auction) which we expect will be set within the Guide Range or no more than 10% above a single figure Guide.

Loading the bidding panel...

Agreement Documents

Make an Enquiry

Submit an enquiry and someone will be in contact shortly.

 
*  
*  
*
*
*

Share